Green Chipboard PA system

I'm still searching for pictures of this. Having read up on the available literature and viewed one or two real life PA systems I set about building the thing. For anyone who's arrived at this page via an internet search along the lines of "DIY speaker building" can I urgently advise, at this juncture, that what follows is how not to do it, and wasn't even the right way to do it in 1977…

Why

We wanted to play live, and we knew we'd need to keep control of costs as we weren't expecting to play to massive numbers of rock fans with bulging wallets. We also knew that the average Joe PA Guy was going to be weirded out by our apparatus and modus operandi, which was basically to plug in our bedroom set-up but replace the headphones with some big speakers, so that the discerning few dozen people who we hoped might attend would be able to listen in too. (I also had deluded fantasies about people plugging their own cassette decks into the mixing desk to record our every moment of random bleeping.)

As Mark has rightly observed elsewhere, though we weren't inclined to accept "the rules" we were, by nature, insufficiently confrontational to make a big fuss about breaking them. Instead we sought to step around them and obtain control of whatever resources we felt we needed to do our stuff, unencumbered.

Musical equipment was still relatively expensive in the 70s - so that you could buy the component parts for a device like a fuzz box or a mixing desk and build it yourself for less, given the tools and a little practice. These days, unless you wanted loudspeaker cabinets of a particular size and shape for some reason, there's no purpose other than whimsical self satisfaction to build most common musical apparatus. My recommendation - if you're looking for it - would be to buy everything second hand.

One of my pulse-quickening moments at around this time was seeing a TV programme that John Peel & John Walters had made which attempted to look at non-mainstream musical activities that had emerged in the wake of the whole punk explosion. Aside from interviewing some bedroom artistes in Carsholton Beeches and other bits I have completely forgotten was an interview with Mark Perry of ATV. Over Mark's shoulder some longhairs were assembling a big pile of PA equipment in a London park which, if I remember rightly, Mark explained was to be the scene of a free concert later that day.

As interested as I was in the wisdom of the Sniffin' Glue editor's words, I was much more excited by the notion that some shabby boxes arriving in a rusty hippy truck could transform a dormant recreation area into a counter-commercial creative space.

I got the chance to view (and play through) that very same PA system, which was looked after by free music specialists Here & Now, when it was used at the Bad Music Festival at the Acklam hall, and based on it some of my assumptions of what constituted a touring PA rig.

What that snippet of film made me believe was that with control of sound, lights and transport we could foment creativity in our own back yards, on our own terms, in the same was as those longhairs and their mate Mark were clearly doing.

Later on I got to pay back on that moment of televisual inspiration by using the green chipboard PA system at that very same counter-commercial creative space, The Meanwhile Gardens W9. Later still I got to play in bands with Mark Perry (electric guitar - very badly) and former Here & Now sound guy Grant Showbiz (Blue Midnight - French Tour 1983 - bass - ok, drums - very shaky). But that's another story.

How

I got a book of speaker plans from Wilmslow Audio via a small ad in an electronics mag and also hounded chassis speaker suppliers for advice (getting helpful responses from, among others, Gauss Cetec, ATC and Fane) on building boxes.

In the end I settled on a three-way system using 1 x 15, 4 x 8 and 12 x tweeters in three boxes.

The tweeters were 6 piezo horns and 6 horrid pieces of junk from the Maplin catalogue, arranged in 3 rows of 4 (two of each device) on a geometric arrangement that I was very proud of. In view of the maximum voltage specifications I wired the piezos in series pairs with a single resistor between them, and the moving-coil paper-cone tweeters the same way.

The eight inch speakers looked like good value in the advert and the power specs were acceptable. This was before the wholesale abuse of the term RMS had come into effect and in the case of these and the horrid tweeters above I was gulled by casual specifications. When they said the tweeters were good for 40 watts (or whatever it was) they meant if you threw 40 watts of full range at a passive crossover whatever dribbled out of the end would probably be ok for the tweeter. The mid speakers didn't fail quite so quickly but they weren't actually very loud either. I think they were rated at 50 watts and the four were wired series/parallel to keep the impedance of the box at 8 ohms.

The bass bins were 1/4 horn reflex types which had just sufficient curved plywood in the design to let me think I'd done enough clever stuff. They were about two feet square viewed from the side and two foot six inches wide. Throughout their lives they had a range of drivers, starting with McKenzies. I blew one of these straight away when a power amp went DC.

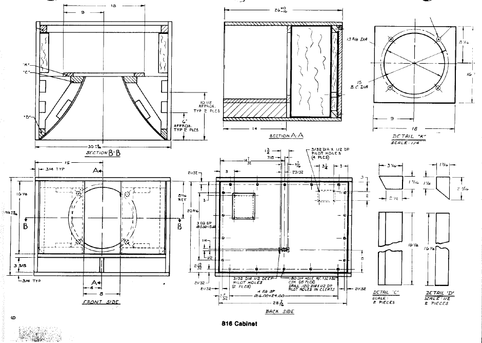
The bass bin plans - little did I know it at the time - were lifted from Altec 816s which can be viewed here or here

Years later, when I was mid-way through replacing these with 2 x 15s I did a gig with the new speaker on one side and both 1 x 15s on the other side. Both together they actually sounded better than the new speaker. I imagine four of them would have actually been almost respectable. Running one on each side they were always rather weedy.

The power amps were Maplin bipolar 150 watt jobbies, which I built on the cheap by buying all the components from different suppliers and etching my own circuit boards. All three (per channel) were mounted in the tweeter box, along with a single 32-0-32 volt power supply transformer and an active crossover from a design in Elektor electronics magazine.

A little later the Maplin mosfet amp design came out which would have been a much better bet in terms of simplicity and economy, but wasn't available when I got started.

Crossover frequencies were set at 300Hz and 3000Hz, with an 18dB per octave slope. The power supply for the crossover was tapped off from the power amp supply (which came to about 50 volts once rectified) by a dropper resistor.

Years later I realised this was a bad idea inexpertly done and that the signal was clipping in the crossover before the power amps got to full power. Sounded fine playing records and tapes but when the band came on and you had to get the vocals over the racket coming off stage…you just couldn't push it to number 11. In fact my disappointment with the mid speakers probably had a lot to do with this.

I junked them after a couple of gigs and built some 2 x 12s using Fane Crescendos. These boxes were as wide as the bass bins and had a square frontal aspect with a big plywood horn going back to a narrow slot in front of the speakers. They were the biggest thing in the rig and though the response was peaky at least the vocals started to get through.

Up to this point I'd been saving on cost and weight by using half inch chipboard for the mid and top cabs but these new ones merited three quarter inch material, if only due to the weight of the speakers.

When the Fanes came through the post there was a little leaflet enclosed showing some W-bin designs (which I'd always wondered about, and had been hoping might be in the speaker plans book I'd previously ordered). Information was much harder to come by in those days, especially in the wilds of Lincolnshire, miles from anywhere.

Later the 8 inch speakers got built into 2 x 8 boxes which sat on top of some tiny W bins (as per the Fane design leaflet) and worked really well as a little disco system or as side fills with a full PA rig, though I'm not sure if the Instant Automatons ever used them in this mode. I never knew who made the eight inchers as bits of the labels had been cut away (presumably the manufacturers were embarrassed). They had white cones, for heaven's sake.

Monitors were really important to us as if we couldn't hear the drum machine we were sunk. I was trying to keep setting up and cabling to a minimum (hence building the amps into one of the speaker cabs) so the wedges were active, with little power amp modules from ILP stuck on the front of the nasty chipboard boxes. I think they were 30 Watts, which in view of our tippy tappy ethos should have been sufficient.

The whole bedroom-studio-onstage model did start to evolve as reality intruded, however, and I started work on some backline amps so we could have more individual control as we played. The first amp I made never worked but was to be some crazy stereo multi-input thing that the drum machine and tapes and so on could plug into, along with the bass. I got the box made (weighed a ton) and fitted the two twelve inch speakers…and then sort of gave up. Always planned to build a set of mono-in stereo-out effects but never got much further than a stereo phaser…

The multicore was some bog standard multiway cabling with no individual screening, probably intended for office telephone systems or something. Naturally this went straight into oscillation due to capacitive coupling between the input channels and the returns, so I added a separate cable for returns to the power amps. The mixers were two 6-2 high-Z input models from different sources. The ProKit is mentioned elsewhere, the Allen & Heath came with the four track equipment I bought when I was made redundant.

Where

The first gig we did with the PA did was to have been as opening act for Zounds & The Astronauts who were touring together at the time. We'd met Jonathan Barnett, former Here & Now roadie and nominal tour manager and promoter of this event (and one of the long hairs from Meanwhile Gardens), when we'd woken up in his room after going down to London for the International Bad Music festival. He'd called up to see if we'd like to play at the Doncaster Bentley Pavilion gig, then called back a few days later to say the gig was off, unless we had a PA system. The Astronauts couldn't make it and it was their van and PA that was key to the whole operation.

The green chipboard PA system wasn't really finished yet but gigs were offered to us so rarely that we weren't about to let that get in the way. Later on JB called back and asked about backline equipment. Turned out Zounds were coming on the coach and wouldn't be able to bring anything with them. The combos I was building were brutally prototypical and in need of fine tuning. The bass amp in particular would lock up into silence if you played too loud and you'd have to switch it off at the mains to get it working again. The guitar amp was a characterless lump of feebleness.

We also had our first ever transport crisis when I discovered I couldn't hire a van as I hadn't had my licence for twelve months. On the Saturday morning of the gig we were wracking our brains for someone we knew who'd be willing to drive us over to Doncaster in a hired van. Thanks then to old school chum Johnny Hale who bailed us out at the last minute; most of our friends had disappeared off to university and were much too intellectual to dirty their hands driving a hired van anyhow.

So, lesson 293 in a series of four million: a sound system without transport is like a bicycle without pedals.

(Lesson 294 concerned the Bentley Punks and the Doncaster Punks who's ideas of a good night out involved kicking the shit out of each other and anyone who tried to intervene, including Lawrence from Zounds.)

Back to Table Of Contents